Мы используем куки-файлы. Соглашение об использовании
3-этажный таунхаус, 173,5 м²
Только на ЦианПроверено в Росреестре
Общая площадь173,5 м²
Участок2 сот.
Материал домаГазобетонный блок
Этажей в доме3
Год постройки2024
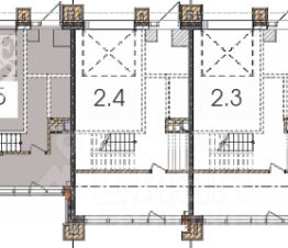
Арт. 84391422 Вашему вниманию представлен жилой комплекс Клен Хаус, расположенный всего в 5 км от МКАД по Дмитровскому шоссе в городе Долгопрудный. Комплекс таунхаусов состоит из двух корпусов, включающих шестнадцать резиденций, построенных в стиле модерн с элементами классики, что придает комплексу уникальный вид. На всей территории комплекса выложена брусчатка и посажены деревья. Особенность комплекса заключается в панорамном остеклении, позволяющем любоваться прекрасными видами на окрестности и наслаждаться мирным и спокойным образом жизни. Высокие потолки и наличие эксплуатируемой кровли создают ощущение простора, объема и свободы. Таунхаус 173,5 кв.м расположенный на земельном участке 2 сотки состоит из трех этажей со свободной планировкой. Наличие второго света и открытой террасы на третьем этаже, дает Вам возможность превратить его в прекрасную зону отдыха. При строительстве использованы качественные материалы: монолитный железобетонный фундамент, монолитные перекрытия, стены из газобенных блоков. Облицовка фасадов выполнена панелями Кликфальц Grand Line 0,5 Quarzit lite и кирпичом ручной формовки "Real Brick". Замыкает образ современного дома плоская эксплуатируемая кровля. К таунхаусу подведены все центральные коммуникации: магистральный газ, водоснабжение, канализация, электричество, проведен интернет. Планировка: Первый этаж: прихожая, кухня - столовая с выходом на террасу, санузел, гараж на одно машиноместо Второй этаж: Мастер-спальня с выходом на балкон, детская спальня, санузел Третий этаж: комната свободного назначения с антресольным этажом и террасой ЖК Клен Хаус в Долгопрудном встречает жителей невероятным сочетанием городской и загородной жизни. Этот жилой комплекс расположен всего в 5 км от МКАД по Дмитровскому шоссе в городе Долгопрудный, микрорайон Котово в непосредственной близости к Котовскому заливу, зон отдыха и яхт-клубам. В охраняемом комплексе представлены таунхаусы свободной планировки площадью от 122 до 499 кв.м. Город Долгопрудный обладает всем тем, что необходимо для полноценной жизни: школами, детскими садами, расширенной торговой сетью, образовательными и медицинскими учреждениями. Рядом с комплексом расположены зеленые зоны отдыха для прогулок на свежем воздухе. В окрестностях комплекса расположены парк культуры и отдыха Мысово, Юсуповский сквер с амфитеатром и видом на Котовский залив, что обеспечивает мирную и тихую атмосферу вдали от городского шума и стресса. До центра Долгопрудного можно добраться автобусным маршрутом за несколько минут. Рядом с комплексом находится станция МЦД-1 "Водники". Неподалёку расположены станции метро Физтех. Это идеальное место для тех, кто хочет быть близко к природе, но при этом иметь доступ к всей инфраструктуре города.
Позвоните автору
Вам ответят на все вопросы

О доме

Площадь

173,5 м²

Материал дома

Газобетонный блок

Количество этажей

3

Год постройки

2024

Об участке

Площадь

2 сот.

Статус участка

Индивидуальное жилищное строительство

Коммуникации и удобства

Санузел

В доме

Канализация

Есть

Водоснабжение

Центральное

Отопление

Автономное газовое

Электричество

Есть

Газ

Есть

Спросите умного помощника
Получите экспертное мнение о жилье

Информация из Росреестра

Кадастровые номера участка 50:42:0010209:*** и здания 50:42:0010209:*** указал продавец

Данные получены 10 декабря 2024 года

Oб участке
Категория земель
Земли населенных пунктов
Разрешённое использование
условно разрешенный вид использования-блокированная жилая застройка, для иных видов жилой застройки
Обременение
Heт сведений
Читать дальше
План участка
Превью плана участка

Расположение

Подпишитесь на объявления в этой локации
Мы сообщим, как только поблизости появится что‑нибудь новенькое
Ипотечный калькулятор
  • 20.1%
  • 30%
  • 40%
  • 50%
лет
  • 10 лет
  • 20 лет
  • 30 лет
Загружаем предложения от застройщика и банков
Хотите продать недвижимость?Разместите объявление на ЦианРазместить
32 610 000 ₽
Эксперт от ЦианаПомощь с поиском и сделкой
Цена за метр
187 954 ₽/м²
Ипотека
возможна
Агентство недвижимости
На Циан
10 лет
Объектов в работе
610
Риелтор
Суперагент