Мы используем куки-файлы. Соглашение об использовании
Проверено в Росреестре
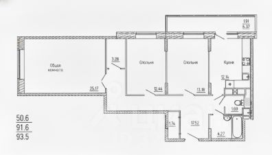
Общая площадь91,6 м²
Жилая площадь50,6 м²
Площадь кухни12,1 м²
Этаж17 из 17
Год постройки2018
Предлагаю квартиру для тех, кто ищет не просто "квадратные метры", а пространство для реализации своих идей. У этого объекта есть три главных козыря: ОБЪЕМ: Потолки 3,4 метра (вместо 2,7 м в обычных квартирах ЖК). Это нужно видеть вживую - ощущение простора совершенно иное. ТИШИНА И ВИД: 17-й, последний этаж. Никакого шума от соседей сверху. Окна, выходящие во двор, "смотрят" на небо, а не в окна напротив. Плюс, по утрам лифт всегда первым забирает именно вас. СВОБОДА ДИЗАЙНА: Квартира - "чистый лист" без перепланировок. Почти все внутренние стены можно снести, создав планировку под себя. Важно: будучи на последнем этаже, вы получаете больше свободы в согласовании проекта. Что уже сделано: Выполнен электромонтаж — разведены провода для света и установлено по 4 группы розеток в каждой комнате, что является хорошей базой для начала отделочных работ. По сделке: Я - первый и единственный собственник. Финансовая чистота: Есть ипотека (2,8 млн.). Чтобы сделать сделку для вас максимально простой, я погашу ее собственными средствами по нашей договоренности. Снятие обременения займет 2 недели, после чего квартира будет готова к продаже. Характеристики: Площадь: 91,6 м² 3 комнаты, кухня 12,14 м², два санузла, кладовая. Полная инфраструктура ЖК "Московские водники" (школы, сады, набережная). Звоните, показ по оперативной договоренности.
Позвоните автору
Вам ответят на все вопросы

О квартире

Тип жилья

Вторичка

Общая площадь

91,6 м²

Жилая площадь

50,6 м²

Площадь кухни

12,1 м²

Высота потолков

3,4 м

Санузел

2 совмещенных, 2 раздельных

Балкон/лоджия

1 лоджия

Вид из окон

На улицу и двор

Ремонт

Без ремонта

О доме

Год постройки

2017

Строительная серия

Индивидуальный проект

Количество лифтов

1 пассажирский, 1 грузовой

Тип дома

Монолитный

Тип перекрытий

Железобетонные

Парковка

Наземная

Подъезды

12

Отопление

Автономная котельная

Аварийность

Нет

Спросите умного помощника
Получите экспертное мнение о жилье
Информация из Росреестра
Обременения
Есть
Площадь
91,6 м²
Этаж
17
Собственников
1
Кадастровый номер
50:42:0010101:***

Расположение

Ипотечный калькулятор
  • 20.1%
  • 30%
  • 40%
  • 50%
лет
  • 10 лет
  • 20 лет
  • 30 лет
Загружаем предложения от застройщика и банков
СобственникID 135903755
    17 388 000 ₽
    Эксперт от ЦианаПомощь с поиском и сделкой
    Цена за метр
    189 825 ₽/м²
    Условия сделки
    свободная продажа
    Ипотека
    возможна
    СобственникID 135903755