Мы используем куки-файлы. Соглашение об использовании
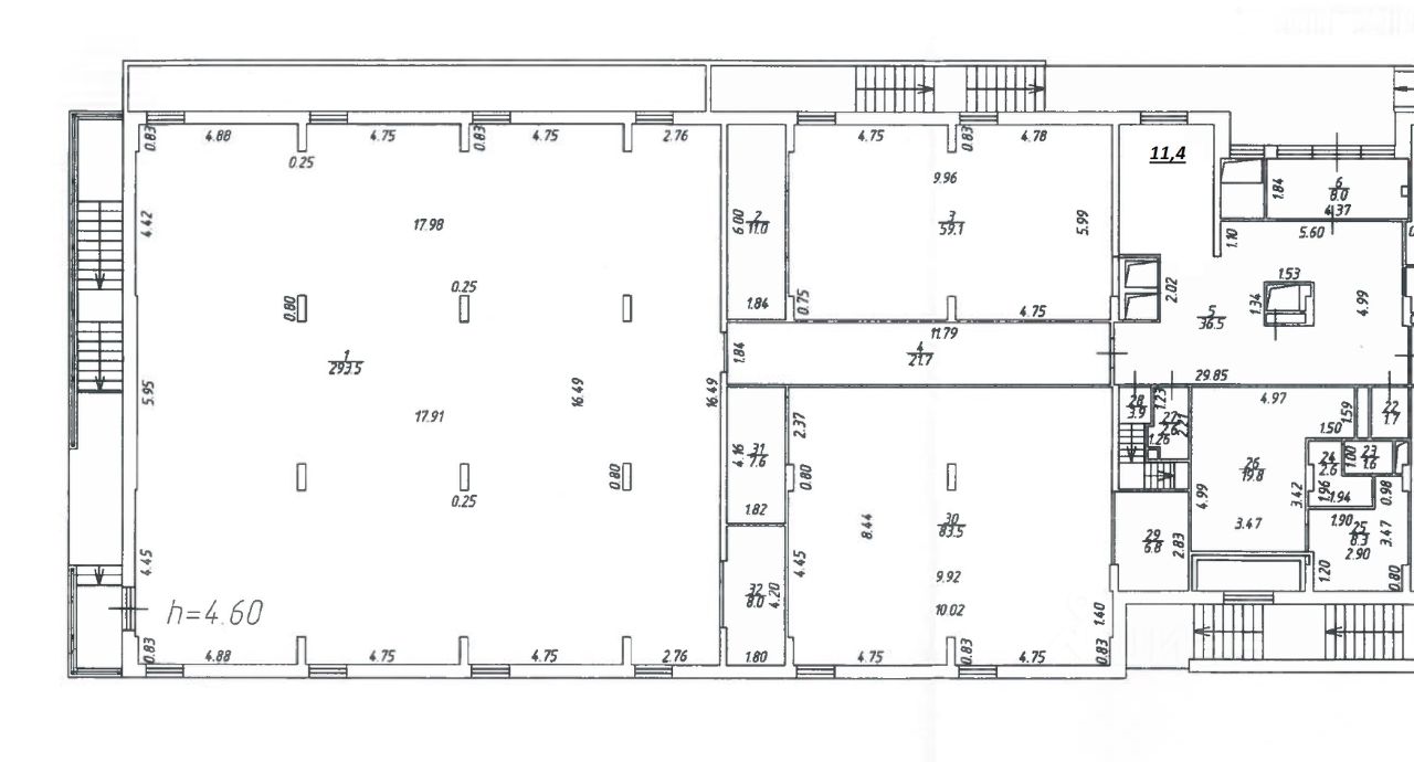
Помещение свободного назначения, 570 м²
Площадь570 м²
Этаж1 из 25
Отчёт о привлекательности объектаУзнайте, насколько помещение и район подходят для вашего бизнеса
Что входит в отчёт
  • Охват населения
  • Пешеходный трафик
  • Автомобильный трафик
  • Средний бюджет семьи по району
  • Арендные ставки рядом
  • Точки притяжения
  • Конкуренты в радиусе 1 км
  • Рекомендации по выбору места для бизнеса
Предлагаем Вам рассмотреть аренду коммерческого помещения, в городе Долгопрудный, б-р косм. Сереброва А.А., дом 4. Общей площадью 570 кв.м. С отличным трафиком проходимости в густо населенном районе. Возможность снять часть помещения. Арендные каникулы на ремонт в помещение. Высота потолков 5м. Выделенная мощность 80 кВт. НДС не включается. Все необходимые условия согласовываются индивидуально, путем нахождения взаимовыгодных вариантов сотрудничества. Мы нацелены на построение долгосрочных и продуктивных партнерских отношений.
lock

Войдите или зарегистрируйтесь
для просмотра информации

Просматривайте условия сделки и всю информацию об объекте
Сохраняйте фильтры в поиске и не вводите заново
Доступ к избранному с любого устройства
Неограниченное добавление в избранное
Позвоните автору
Вам ответят на все вопросы
Остались вопросы по объявлению?
Позвоните владельцу объявления и уточните необходимую информацию.
  • Инфраструктура
  • Похожие рядом
  • Площадь участка0 га
  • Общая площадь570 м²
  • Статус участкаВ собственности
Приточная вентиляция
Центральное кондиционирование
Центральное отопление
Сигнализация
Помощь надёжных риелторов
Риелтор партнёр Циан поможет купить или продать любую недвижимость
917 000 ₽/мес.

Прямая аренда (от года), минимальный срок аренды 60 месяцев, доступны арендные каникулы, обеспечительный платёж 917000 ₽, предоплата за 1 месяц

12 817 $/мес.
10 732 /мес.
Цена за метр
19 306 ₽ в год
Налог
УСН
Комиссия
1%
Коммунальные платежи
не включены
Эксплуатационные расходы
не включены
Агентство недвижимости
Суперагент